Přeskočit na obsah

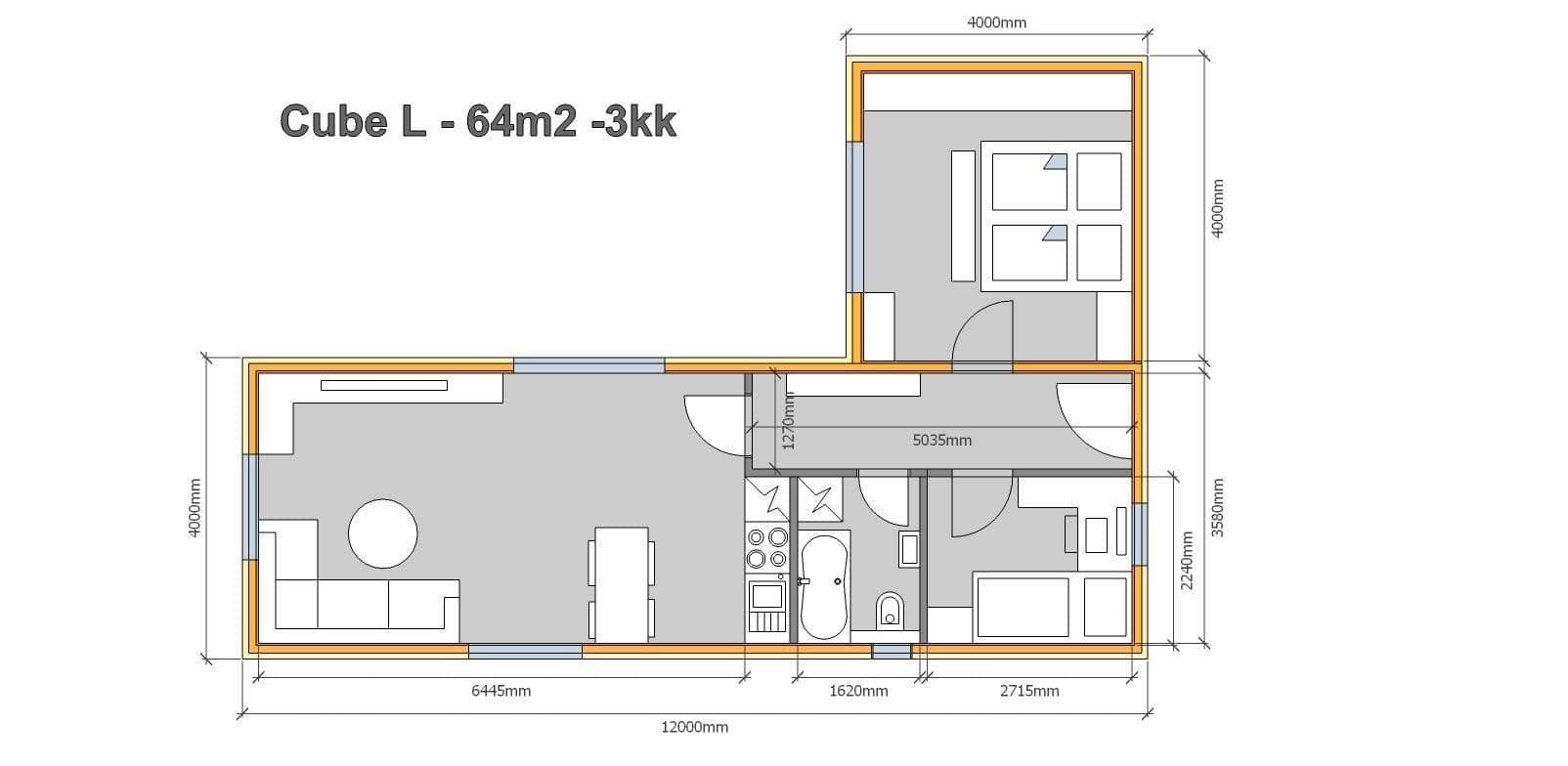
Modulový dům s uspořádáním do L

od 2 500 000,-Kč

Dostatečný prostor tohoto modulového domu umožní bydlení celé rodině, ideální dům pro rodinu s malými dětmi.

Tento typ modulového domu je vlajkovou lodí naší společnosti, úsporný a zároveň dostatečně velký pro 3- 4 osoby. Domek disponuje zastavěnou plochou 64m2. Je zejména vhodný pro páry s dětmi a lidi v důchodu.Díky panelům s tou nejlepší izolací zaručuje nízkou energetickou náročnost a v kombinaci s tepelným čerpadlem vzduch/vzduch jsou náklady na elektřinu a topení do 800 Kč za měsíc. Dům je zateplený pomocí tvrzené čedičové vaty a sendvičovými PUR panely. Stěna 180mm, podlaha 200mm, Střecha 100mm. Sendvičový panel 100mm odpovídá tloušťce zdiva 100cm. Barvy obkladu a interiérových prvků se řeší po domluvě v průběhu stavby. K naším domkům a plnohodnotnému bydlení Vám bude stačit malý pozemek do 300m2.

Tento modulový dům je součástí energetické kategorie třídy B.

Součástí dodávky je: kompletní rozvody elektřiny, příprava pro kuchyň, elektrické tepelné čerpadlo značky Sinclair, kompletně obložená koupelna s usazenou vanou/sprchou, umyvadlem, záchodem, bateriemi, ventilátor, podlahy, lišty, obložky, dveře, Led světla, malba bílá.